Property details

Monaco / Local / 2 pièces 1 900 000 EUR

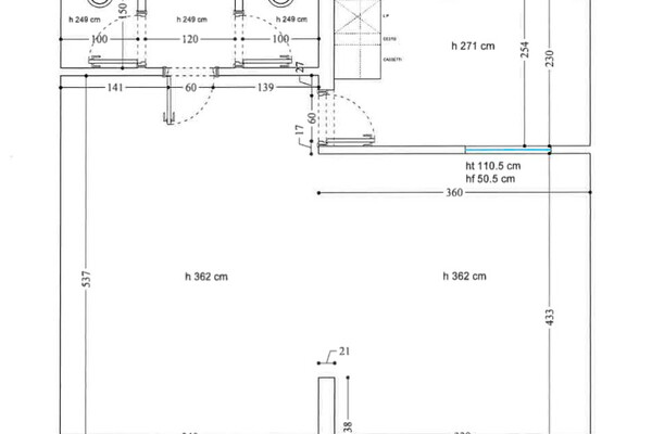
Local avec vitrine en vente au Botticelli, en plein coeur de Fontvieille village.

Informations

Immeuble : Botticelli
Quartier : Fontvieille
Ville : Monaco
Pays : Monaco
Surface habitable : 47.50 m²
Superficie totale : 47.50 m²
Nb. pièces : 2 pièces

Télécharger en PDF

Au Botticelli, un local avec vitrine de 47,5m2 disponible à la vente. 

Bail actuel arrivant à échéance le 31/10/2026 pour une activité de bureau administratif. 

Loyer mensuel HT de 4,500€ et 650€ de charges. 

 

Contactez l'agence